КМП - 2 Вариант внешнего вида
КМВ 12
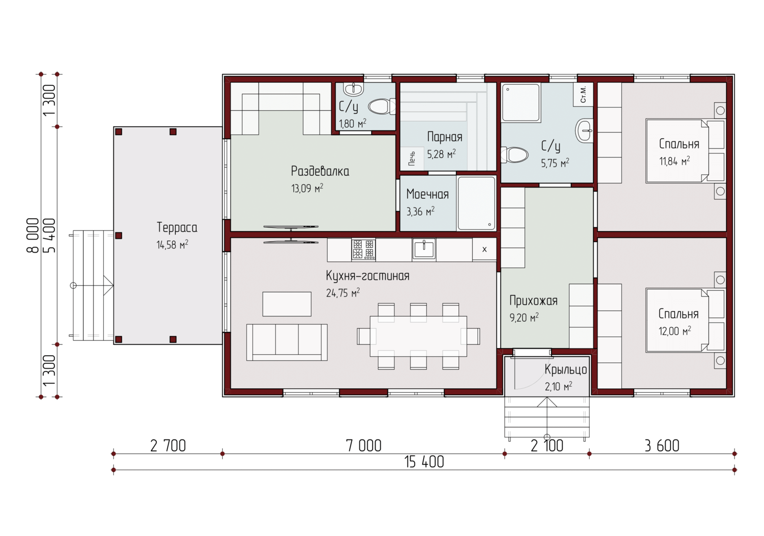
Планировочное решение
Характеристики проекта
Площадь: 103,75 м²
Фото построенных домов
Комплектации и цены
Базовая 3 548 987 ₽
Стандарт 4 684 908 ₽
Комфорт 5 218 667
Подробный расчет стоимости
Получить подробный расчет

Пример подробного расчета.pdf

Мы делаем такие расчеты бесплатно! И не важно с нашего сайта проект или нет!

Скачать

Полезные дополнения
Может быть интересно
От проекта до реализации

Фиброцементный сайдинг Cedral 

Фиброцементные панели KMEW 

Фасадная плитка Hauberk 

Фасадные панели Docke-R 

ИМИтация бруса

виниловый сайдинг

  • Персональный архитектор
  • Индивидуальное проектирование
  • Бесплатный дизайн фасада
  • Подробный проект
  • Виртуальная 3D прогулка
  • Широкий выбор отделочных материалов
  • Материалы известных брендов
  • Технический надзор
  • Современное оборудование
  • Собственное производство
Так рождаются качественные, каркасные дома
Приезжайте к нам в офис
Строительство каркасных домов в Марий Эл